• Manufacturer & Exporters in Industrial Sector Since 2018

STEAM / AIR VENT SILENCER

STEAM / AIR VENT SILENCER

STEAM / AIR VENT SILENCER

Noise is one of the major forms of pollution. Results of noise pollution are very dangerous and hence we need to have control on noise levels.

In order to meet environmental standards noise reduction requirements, continue to increase. Noise limits for the avoidance of hearing damage should be less than 85 dB of continuous source and less than 110 dB of intermittent source.

Steam / Air is vented from boiler / Equipment either from exhaust valves, vent valves, safety valve or from start-up/ warm up vent valves. Very high level of sound (approx. 160 dB to 175 dB) is generated when steam / air is vented from elevated pressure to atmospheric pressure. It is harmful to plant people and is also audible over large distance, hence equally harmful to society around. Our product silencer is specially designed to reduce this sound level to around 85 to 110 dB that is to safety zone.

Our design of silencer is completely customized suitable for customer™ requirements and site conditions. For Silencer design we follow guidelines as per OSHA, basic principle of acoustic & mechanical design is as per ASME sec VIII div. I.

Working Principle

We use principle of diffusion and absorption for design of silencer. Wide ranged frequency of blow off steam is brought in to specific band where it can be absorbed by using diffusion principle. Then conditioned sound is absorbed by using special absorbing medium, which reduces dB at outlet.

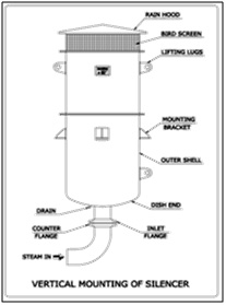
Construction Features

    1. Outer shell and Dish end –IS2062 Gr.B
    2. Rain hood - IS2062 Gr.B
    3. Bird screen-square mesh IS2062 Gr.Bsize1” X1” or drilled holes on the Shell
    4. Support bracket/ lifting lug - IS2062 Gr.B
    5. Absorber – Special sound absorbing wool
    6. Absorber liner – SS304
    7. Diffuser / Inlet pipe – SA335 P11/P22 or SA106 Gr.B, (depends on temperature of steam inlet)
    8. Inlet flange – SA182 F11 / F22 or SA105, depends on temperature of steam inlet

    We design and manufacture silencers for:

    1. Superheated steam
    2. Saturated steam
    3. Start up and warm up vents
    4. Blow down applications
    5. For any other Steam / Air / Nitrogen vents

    Range “Our design of silencer is completely customized as per our customer™ requirements. We have wide range of silencers from 0.5 TPH to 100 TPHs team / air flow and for pressure 1 kg/cm²(g) to 150 kg/cm²(g).Generally, we recommend to erect silencer vertically but for space constraints we can provide horizontal as well as inclined designs too.

    Required Design Input Parameters

    1. Steam flow rate in kg/hr
    2. Steam inlet temperature to silencer (⁰C)
    3. Steam inlet pressure to silencer (kg/cmΒ²)
    4. Inlet pipe size
    5. Elevation level of silencer from ground

    Application on Boiler

    1. Silencer on drum safety valve
    2. Silencer on drum safety valve 2
    3. Silencer on superheater safety valve
    4. Silencer on EMSV
    5. Silencer on start up vent
    6. Silencer on warm up vent
    7. Silencers for Blow Down Applications